台湾賃貸.COM
日本語でお問合せいただけます
お問合せフォームよりご要望をお聞かせください
トップページ
物件検索
サイト案内
ご契約の流れ
お問合せ
生活情報
物件種類
選択
住居
マンスリーマンション
オフィス
店舗
家賃
金額入力
10000未滿
10001~20000元
20001~30000元
30001~40000元
40001~50000元
50001~60000元
60001~80000元
80001~100000元
100000元以上
~
元
エリア
選択
中正區
大同區
中山區
松山區
大安區
萬華區
信義區
士林區
北投區
內湖區
南港區
文山區
萬里區
金山區
板橋區
汐止區
深坑區
石碇區
瑞芳區
平溪區
雙溪區
貢寮區
新店區
坪林區
烏來區
永和區
中和區
土城區
三峽區
樹林區
鶯歌區
三重區
新莊區
泰山區
林口區
蘆洲區
五股區
八里區
淡水區
三芝區
石門區
間取り
選択(オフィス・店舗は選択不可)
ワンルーム
1 LDK
2 LDK
3 LDK
4 LDK
5 LDK以上
坪数
說明
坪数入力
10坪以下
11~20坪
21~30坪
31~40坪
41~50坪
51坪以上
~
坪
エレベーター
選択
公寓
電梯大樓
獨棟住宅
階層
入力
1~5階
6~10階
11~15階
16~20階
21階以上
~
階
駅路線図
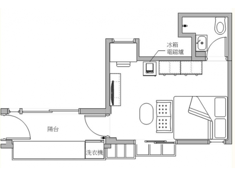
物件検索 / 台北市內湖區 ワンルーム アパート
ホーム
物件検索
種類
住居
物件番号
O114011L0808
家賃
15,000元
管理費
管理費込み
敷金
二ヶ月
エリア
內湖區
住所
台北市內湖區環山路二段
最寄MRT駅
港墘
間取り
ワンルーム
広さ
6坪
階層
2階
エレベーター
無し
駐車場
無し
インターネット
別料金
家具
有り
築年数
39年
掲載日
2026.01.08
コメント
一覧へ戻る
トップページ
物件検索
サイト案内
ご契約の流れ
お問合せ
生活情報
一年未満のご滞在予定の方へ
マンスリーマンションに関して
台湾の物件について
エリアの特色
台湾生活のスタートアップ
生活全般
台湾の交通インフラ
語学学校 語学塾
学校、幼稚園<お子様向け>
コミュニティ
法人設立について
オフィスについて